Patterson Elementary and Pierce County Middle School may see the addition of new classrooms and bathrooms during the coming year.
The school board voted at their work session Thursday morning to move forward with advertising for a construction manager for the work.
The construction manager should be chosen by the board at their February meeting. The construction manager will assist in coming up with a gross maximum price on the project. The board will then make a decision to proceed with one or both of the projects.
The system's architect SP Design Group of Macon, has drawn up plans for the new construction, which were presented at the work session.
Facilities and Maintenance Director Harbin Farr gave a presentation on the new additions.
At Patterson, the project will include construction of four new classrooms and bathrooms. A conference room and storage space will also be included.
The new addition will be built at the rear of the campus and will take up some of the parking there.
The addition will eliminate the use of mobile units at the school and put all students inside the main building.
Farr said the existing parking should be adequate to meet the school’s needs.
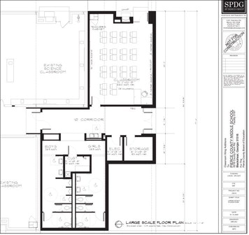
At the middle school three new classrooms and three sets of male and female bathrooms will be added at the end of the sixth, seventh and eighth grade wings. Storage space will also be included.

Shown to the right are design plans by SPDesign Group of Macon showing proposed additions to enlarge Pierce County Middle School.










