R.H. Tyson Construction has been selected as the construction manager for the proposed classroom and bathroom additions at Patterson Elementary and Pierce County Middle School.
The school board voted at its March 9 meeting to select Tyson as the construction manager.
Tyson scored highest in an evaluation conducted by a committee made up of School Superintendent Dara Bennett, School Board Chairman Duward Boatright, Second District School Board Member Perry Tison and Facilities Director Harbin Farr.
One other company, JC Contractors of Moultrie, submitted a bid on the project.
The committee evaluated both companies based on project team, pre-construction management plan, construction management, local participation, financial, fee structure and general conditions. Tyson scored 100, while JCI scored 88.75.
Tyson’s total fees for the construction is projected at $541,250.
The board will make a final decision to proceed with one or both of the projects.
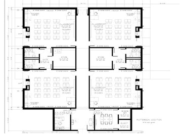
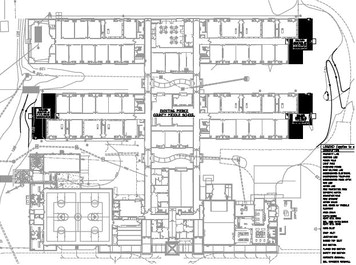
The system’s architect, SP Design Group of Macon, has drawn up plans for the new construction, which were presented at January’s work session.
At Patterson, the project will include construction of four new classrooms and bathrooms. A conference room and storage space will also be included. The new addition will be built at the rear of the campus and will take up some of the parking there.
The addition will eliminate the use of mobile units at the school and put all students inside the main building.
Farr said the existing parking should be adequate to meet the school’s needs.
At the middle school three new classrooms and three sets of male and female bathrooms will be added at the end of the sixth, seventh and eighth grade wings. Storage space will also be included.


Design plans by SPDesign Group in Macon show proposed additions to Patterson Elementary and Pierce County Middle School.









